






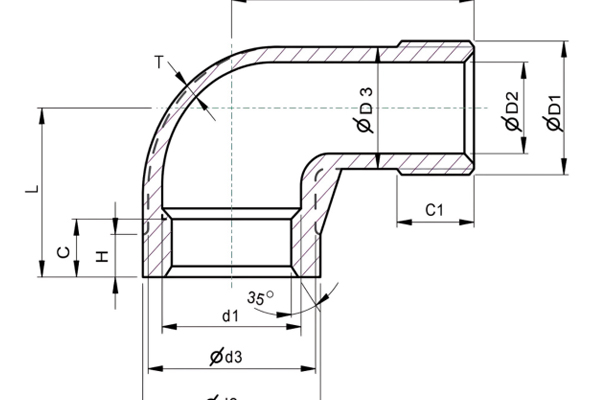
Street Elbow to gwintowana rura zaprojektowana w celu dodania kąt 90 stopni do systemu rurowego. 90 łokci uliczne łączą dwie rury pod kątem 90 stopni. Unikalną cechą łokci ulicznych jest to, że składają się one z męskiego i żeńskiego połączenia końcowego. Może łatwo połączyć się z kobiecym dopasowaniem gwintowanym, takim jak koszulka, bez potrzeby sutka rurowego, jak wymagałby zwykłego łokcia.
Ta konstrukcja pozwala łokciom ulicznym 90 ° na realizację układu kierowniczego i połączenia rurociągów, które służą do zmiany kierunku przepływu rurociągu i utworzenia 90-stopniowych zakrętów w rurociągu.
Łokcie ze stali nierdzewnej można również podzielić na łokcie o równej średnicy i łokcie nierówne, łokcie równej średnicy są używane do łączenia rur o tej samej średnicy zewnętrznej, a łokcie nierówne są używane do łączenia rur z różnymi średnimi zewnętrznymi.
Stal nierdzewna 90 ° łokci uliczne, podobnie jak wiele innych wyposażenia rur, są w zasadzie wykonane ze stali nierdzewnej, takich jak 304 stali nierdzewnej lub 316 stali nierdzewnej. Materiał ten ma odporność na korozję i oporność w wysokiej temperaturze i jest odpowiedni do różnych zastosowań rurociągów przemysłowych.
Wstęp
| Przedmiot | Łokcie uliczne 90 ° stali nierdzewnej |
| Standard | EN 10242; ISO 49; JIS B2301; ANSI/ASME B 16.3 (klasa 150 i klasa 300) |
| Klasy materialne | ASTM A351 CF8 (304), ASTM A351 CF8M (316L) |
| Powierzchnia | Marynowanie |
| Typ | Odlew |
| rozmiar | NPS 1/8-4 ” |
| Czas dostawy | W ciągu 5-30 dni po otrzymaniu przedpłaconych |
| Uszczelka | Każdy pakowany w policzkowym |
| Aplikacja | Do stosowania z powietrzem, gazem ziemnym, oleju, pary, wody. |
Założona w 2007 r. I przeniosła się do Strefy Rozwoju Gospodarczego Longyou, prowincji Zhejiang, w 2022 r. Obejmuje obszar 130 000 metrów kwadratowych, ponad 30 linii produkcyjnych, 300 pracowników, 20 osób badawczych, 30 osób inspekcyjnych i roczną wydajność 50 000 ton.
Minął system zarządzania ISO9001: 2008, PED 97/23/EC EU Press Equipment Certyfikacja, China Special Sprzęt Licencja produkcyjna (rurka ciśnieniowa) Certyfikacja TS, certyfikat ASME, system zarządzania standaryzacją przedsiębiorstwa prowincji (CCS), amerykańskie biurowe wirunage (ABS), brytyjskie wysyłki), brytyjskie wysyłki, rejestrowe wysyłki, brytyjskie wysyłki, rejestrowe wysyłkowe, rejestrowe. (LR), Deutsche Veritas (GL), Bureau Veritas Society (BV), Det Norske Veritas (DNV) i koreański rejestr fabryki (KR).
Główne produkty obejmują rurki ze stali nierdzewnej, wyposażenie rur, kołnierze, zawory itp., Które są szeroko stosowane w roprze naftowej, przemysłu chemicznym, przemysłu nuklearnym, wytopie, stoczni, farmaceutyce, żywności, konserwacji wody, energii elektrycznej, sprzęcie mechanicznym i innym pól. Firma przestrzega korporacyjnej zasady „jakości przetrwania, reputacji rozwoju” i z całego serca służy każdemu klientowi, aby stworzyć sytuację korzystną dla wszystkich.





Gęstość masowa stali miękkiej: podstawy i znaczenie praktyczne Gęstość masy stali miękkiej jest podstawową właściwością, która bezpośrednio wpływa na sposób, w jaki inżynierowie i projektanci do...
Zobacz więcejWprowadzenie do materiałów ze stali niskostopowej Stal niskostopowa to rodzaj stali, która oprócz węgla zawiera niewielki procent pierwiastków stopowych, zwykle mniej niż 8%. Pierwiastki te, tak...
Zobacz więcejPrzegląd — co oznacza „waga na cal sześcienny” dla stali nierdzewnej „Waga na cal sześcienny” to po prostu masa (w funtach) jednego cala sześciennego materiału. W przypadku stali nierdzewnej zal...
Zobacz więcejNigdy nie udostępnimy Twojego adresu e -mail i Ciebie
Obiecujemy, że możemy zrezygnować w dowolnym momencie.